|
||
全部產品分類
|
||



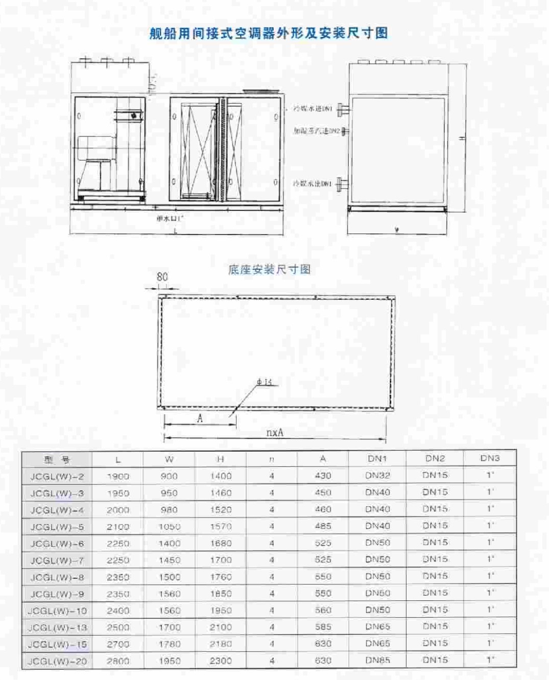
| 艦船用間接式空調器 | |||
| 類型: | 間接式 | 制冷量: | 233 kw |
| 制熱量: | 260 kw | 名義風量: | 20100 m3/h |
| 機外余壓: | 1700 Pa | 制熱介質: | 0.3-0.4MPa飽和蒸汽、熱水 |
| 主電路電源: | AV380V 3Φ50Hz | 控制電路電源: | AV220V 1Φ50Hz |
| 安全保護裝置: | 氟高壓、氟低壓、(油壓)、斷水、缺相、過載、安全閥(或易熔塞) | 風機型式: | 船用離心風機 |
| 風機電機功率: | 22 kw | 蒸汽加熱器型式: | 銅管套銅翅片 |
| 蒸汽耗量: | 456 kg/h | 外形尺寸: | 2800×1950×2300 mm |
| 重量: | ~2200 kg | ||



| -供應商聯(lián)系方式- | |||||
|
|
公司名稱: | 靖江市國利空調制造有限公司 |
|
聯(lián)系人姓名: | 錢麗美 |
| 公司地址: | 靖江市城北園區(qū)長新路8號 | 聯(lián)系人電話: | 0523-84800546/13775714648 | ||
| 聯(lián)系人郵箱: | yangnie168@163.com | ||||