|
||
全部產品分類
|
||
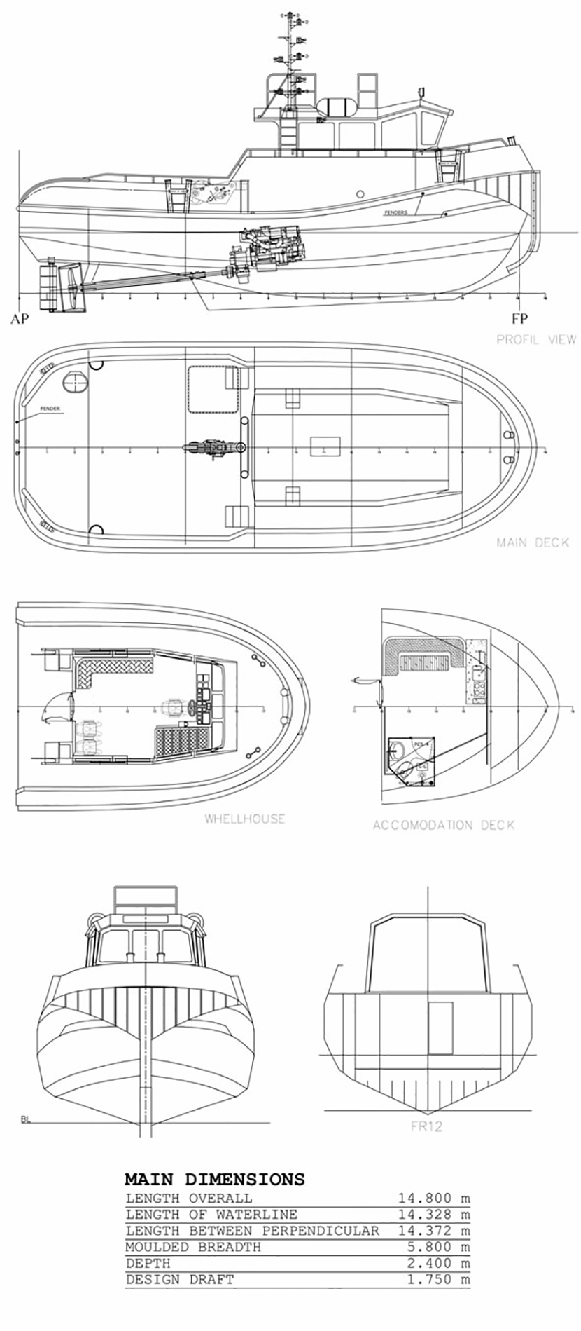
| 15米拖船 | |||
| 總長: | 15m | 航速: | 12kn |
| 型寬: | 5.8m | 吃水深度: | 1.6m |



| -供應商聯系方式- | |||||
|
|
公司名稱: | Loyd Shipyard |
|
聯系人姓名: | Hüseyin Meri? |
| 公司地址: | Head Office : Loyd Shipyard Istanbul Chamber of shipping register no : 576986 Ayd?nl? Deri Organize Sanayi Bolgesi. 18.Yol Dilek Sokak. No:20 X4 Ozel Parsel Tuzla / Istanbul / Turkey | 聯系人電話: | Phone: +90 216 394 20 98 | ||
| 聯系人郵箱: | hmeric@loydshipyard.com | ||||